Linha do Tempo
1943
Antes da existência do Lar dos Meninos, em 1943, existem documentos com descrição sobre a intencionalidade do projeto, como se pode ver na reportagem de época, com título Lar dos Meninos.

1944
- Criação do Lar dos Meninos por decreto de JK.
- Construção do primeiro pavilhão do Lar dos Meninos, com gestão da Prefeitura.
Diferentes reportagens foram vinculadas nesse período, em geral tratando da construção da instituição como parte de uma política de estado que entendia infâncias periféricas e negras – mobilizadas a nível institucional sob a categoria do ‘menor’ – como potencial risco de segurança pública a ser corrigido.
1945
- Inauguração do Lar dos Meninos.
- Construção do segundo pavilhão (1945 a 1949), construção do chiqueiro e do campinho de futebol.
As primeiras construções do Lar podem ser observadas em registros fotográficos e reportagens de jornal.


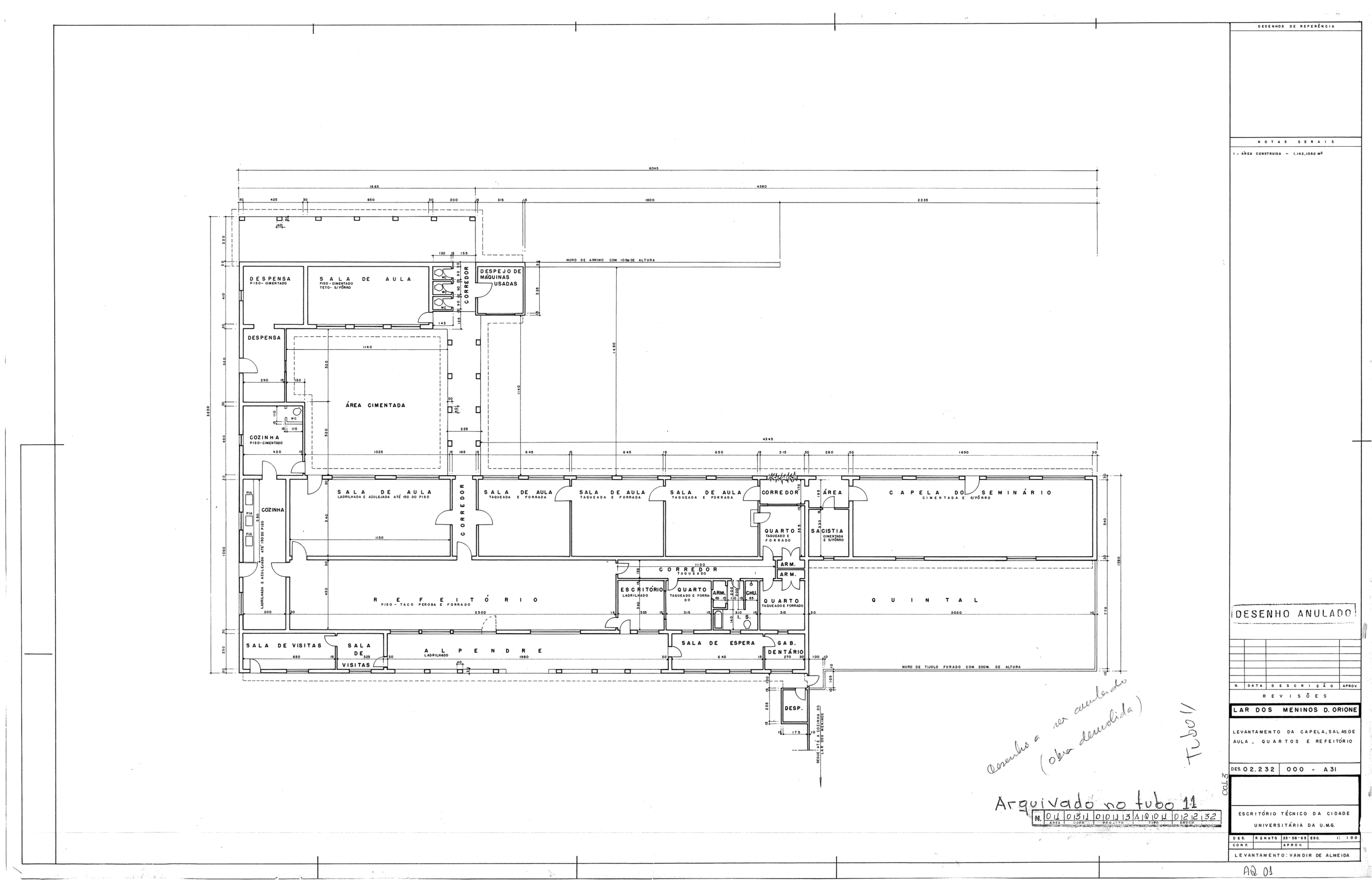
Muitas das plantas baixas são conhecidas e registradas no acervo, e as estruturas foram identificadas na espacialidade da Estação Ecológica.

1948
- Doação a Pequena Obra da Divina Providência.
A partir dessa data a gestão da instituição ficou a cargo dos padres e religiosos da Pequena Obra da Divina Providência, conhecida como Dom Orione, quando o espaço institucional passa a chamar Lar dos Meninos Dom Orione.


1949
- Inauguração do Pavilhão Dr. Otacilio Negrão de Lima e caieira.
- Construção do seminário, refeitório e enfermaria do lar dos Meninos.
Depois de inaugurados, os pavilhões também continham oficinas diversas: marcenaria, fabrica de colchoes e sapatos. As crianças e jovens aprendiam diferentes trabalhos, incluindo também agricultura e posteriormente, o trabalho de olaria, produzindo tijolos.


As fotos originais foram colorizadas por Inteligencia Artificial e temos resultados interessantes para pensar nos moradores.
1950
- Inauguração do Pavilhão-cottolengo D. Déa Dantas Campos.
O pavilhão-cottolengo D. Déa Dantas Campos inaugurado em 1950 tinha dois edifícios, um feminino e outro masculino, e também havia uma enfermaria e Coronel Elpídio Campos do Amaral construiria uma oficina, segundo artigos de jornal consultados.
O pavilhão-cottolengo tinha uma característica específica, ao reunir pessoas com deficiência para cuidados da instituição, e nesse caso permitindo a presença de meninas.
A enfermaria atendia todos estudantes e moradores do Lar dos meninos, atualmente nossa sede administrativa.

1951
- Inauguração do Busto de JK.
Grande evento, reunindo padres, lideranças religiosas e militares, além do presidente da época, nota-se as crianças em reverência à bandeira. Através das fotos e memórias dos ex-moradores sabemos da existência dos Lobinhos Dom Orione, como se vê nas fotos pela forma de continênia das crianças, com dois dedos à altura da testa.




A colorização dessas imagens trazem elementos materiais diferentes: cores das roupas e diversidade de raça e etnia.
1953
- Construção do Grupo Escolar Professor Arduino Bolivar.
A planta baixa do grupo escolar pode ser vista em nosso acervo, e a partir dela entendermos melhor a distribuição do espaço e a organização de estudantes. No grupo estudavam tanto interno ao Lar quanto externos, criando um ambiente de permeabilidade entre as crianças e jovens.

1954
- Inauguração do Grupo Escolar Professor Arduino Bolivar.
Construção da olaria, dentre as fotos do acervo os registros relacionados à construção da olaria e seu funcionamento são os mais abundantes. Envolvia toda a vida do Lar dos Meninos, com produção e comercialização, incluindo entrega dos tijolos. Vale ressaltar que se estima cerca de 10mil tijolos produzidos por semana.
1955
- Inauguração da Olaria patrocinada pelo Rotary Club.
Notamos pelo acervo fotográfico que a queima era também utilizada como evento do Lar dos Meninos, reunindo docentes – podemos identificar a professora do Grupo escolar, com diferentes autoridades do lar e autoridades externas, em um dia de queima de tijolos no forno.

Existem reportagens sobre a inauguração da Olaria.
1956
- Desapropriação do Lar dos Meninos Dom Orione por decreto de JK, mas que não reverberou em uma retirada nesse momento, e sim cerca de 20 anos depois.
Nesse período a olaria era uma forma de renda para a instituição, e muitos jovens trabalharam para sua manutenção.
1957/1958
- Criação do Instituto Dom Carlos Sterpi.
Ao longo do tempo a Olaria passou a ter dois andares, sendo o segundo andar utilizado para cuidar e fortalecer o fogo.


1971
- Inauguração do Grupo Escolar Dom Orione.
A venda de tijolos maciços e de oito furos envolvia comercialização para trabalhadores, em especial para o bairro Vila Recreio.

1974/1975
- Mudança do Lar dos Meninos, retirada da instituição do campus.
O transporte dos tijolos era feito pelos moradores do Lar dos Meninos.

Embora o Lar dos Meninos tenha sido retirado desse espaço, suas marcas são vistas não somente nas edificações e caminhos, mas também em materialidades mais sensíveis, como nas árvores que habitam nossa estação ecológica.
Fonte: Nicole Mara Vieira Dias dos Santos, 2025.












